КШЦМ полнопроходный (PN 25-40, DN 15-80)
Технические характеристики:
Изготовление и поставка по:ТУ 3740-002-30995032-2014
Класс герметичности по:ГОСТ 9544-2005
Материал корпусных деталей:Углеродистая сталь (сталь 20)
Номинальное давление, PN (МПа):25-40
Рабочая среда:вода, пар, нефтепродукты, ГСМ, природный газ, жидкости и газы без содержания абразивных примесей
Температура окружающей среды (°C):от -40°С до +60°С
Температура рабочей среды (°C):от -40°С до +200°С
Условный проход, DN (мм):15-80
Принцип работы крана
Если рукоять (рычаг) расположен вдоль трубы, то прохождению жидкости или газа ни что не препятствует. Повернув ручку, одновременно внутри поворачивается шар, который в свою очередь связан со шпинделем, плотно прижимается к кольцам и полностью перекрывает систему.
Материалы исполнения
• корпус: углеродистая сталь (сталь 20);
• шар: нержавеющая сталь (сталь 20Х13);
• шток: нержавеющая сталь (сталь 20Х13, AISI 304, AISI 409).
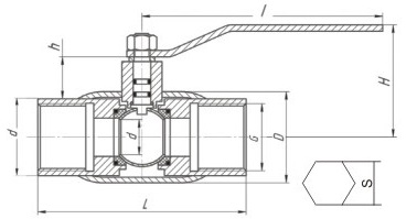
Габаритные размеры
| Обозначение | Размеры, мм | Масса кг | ||||||||
|---|---|---|---|---|---|---|---|---|---|---|
| G | d | L | 1 | H | h | D | S | d* | ||
| Кран КШЦМ Ду15 Ру40
Обозначение
|
1/2
Размеры, мм
|
15
Масса кг
|
135
G
|
170
d
|
72
L
|
23
1
|
42
H
|
27
h
|
-
D
|
0.8
S
|
| Кран КШЦМ Ду20 Ру40
Обозначение
|
3/4
Размеры, мм
|
18
Масса кг
|
75
G
|
17
d
|
48
L
|
41
1
|
1.2
H
|
|||
| Кран КШЦМ Ду25 Ру40
Обозначение
|
1
Размеры, мм
|
24
Масса кг
|
20
G
|
57
d
|
1.5
L
|
|||||
| Кран КШЦМ Ду32 Ру40
Обозначение
|
1 1/4
Размеры, мм
|
30
Масса кг
|
155
G
|
235
d
|
92
L
|
40
1
|
60
H
|
-
h
|
55
D
|
1.9
S
|
| Кран КШЦМ Ду40 Ру40
Обозначение
|
1 1/2
Размеры, мм
|
40
Масса кг
|
170
G
|
100
d
|
38
L
|
76
1
|
68
H
|
2.9
h
|
||
| Кран КШЦМ Ду15 Ру40
Обозначение
|
2
Размеры, мм
|
49
Масса кг
|
190
G
|
110
d
|
41
L
|
89
1
|
81
H
|
4
h
|
||
| Кран КШЦМ Ду15 Ру40
Обозначение
|
2 1/2
Размеры, мм
|
65
Масса кг
|
200
G
|
335
d
|
135
L
|
79
1
|
114
H
|
99
h
|
5.8
D
|
|
| Кран КШЦМ Ду15 Ру40
Обозначение
|
3
Размеры, мм
|
75
Масса кг
|
240
G
|
150
d
|
74
L
|
133
1
|
133
H
|
11.5
h
|
||
КШЦМ полнопроходный (PN 25-40, DN 15-80)
Краны шаровые КШЦМ предназначены для перекрытия потока рабочей среды, эксплуатируемой в трубопроводах:
– нефтеперерабатывающей промышленности,
– газового хозяйства,
– жилищно-коммунального хозяйства.
Уплотнение штока: фторсилоксановый эластомер;
Уплотнение шара: фторопласт-Ф4К20 с дублирующим уплотнением из фторсилоксанового эластомера.
